Ficha
EN EXCLUSIVA
CASA RURAL EN FINCA RÚSTICA DE 12 HECTÁREAS, VILLAMIEL, CÁCERES
Villamiel (Cernadal) - REF. 1003

700 m2

7

9
venta: 775.000 €
Descripción

NO COBRAMOS HONORARIOS AL COMPRADOR

 

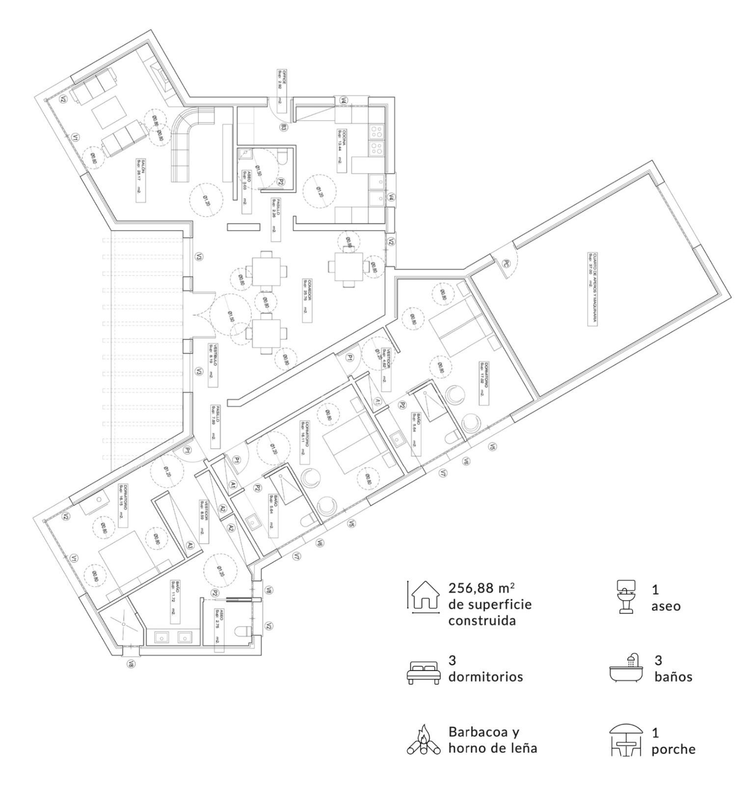
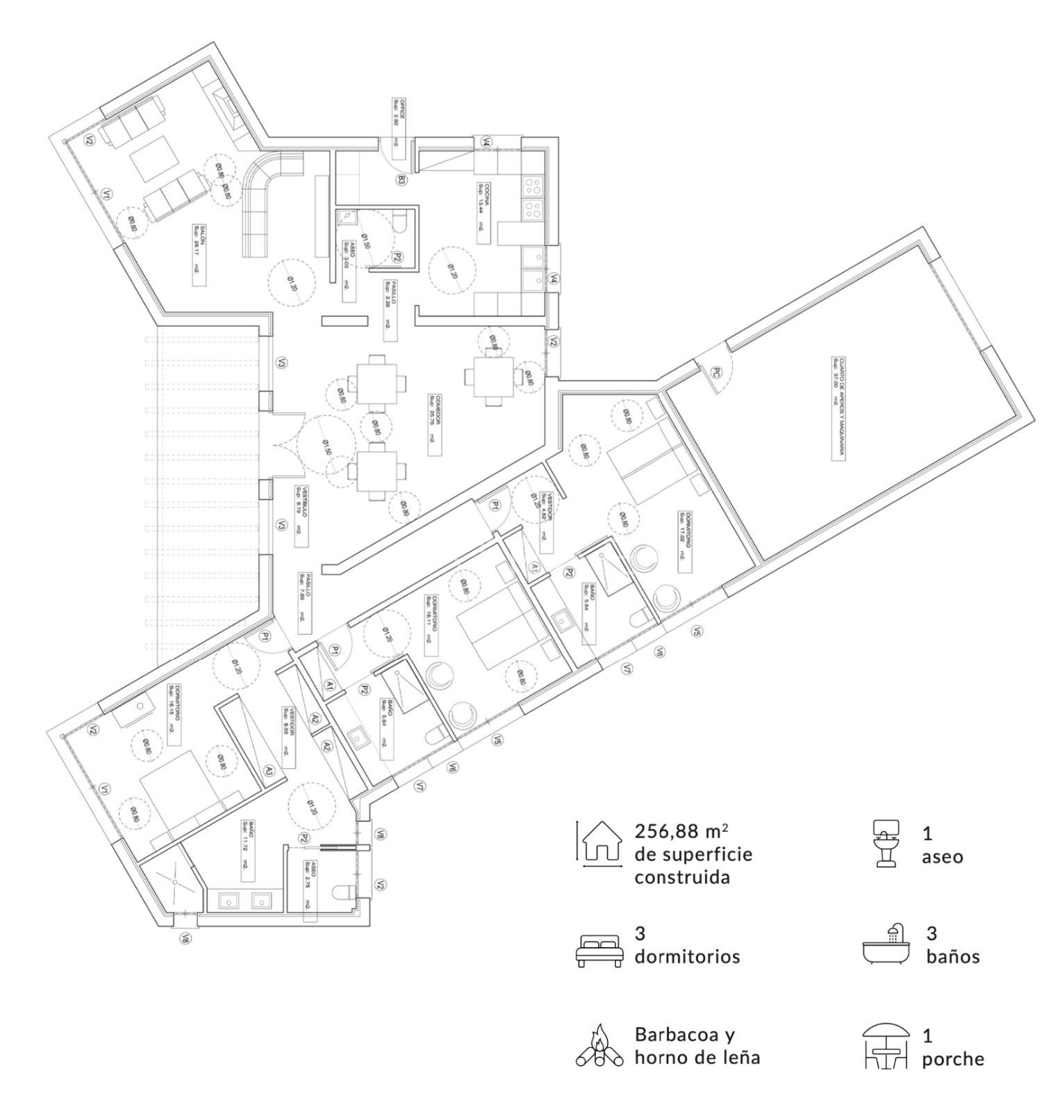
ATRAE Inmobiliaria ofrece, en Villamiel (Cáceres), casa rural de 691m2 construidos, en finca rústica de más de 12 hectáreas. 


El complejo lo forman un edificio principal en el que se sitúan 3 de las habitaciones con cuarto de baño en suite, un gran salón comedor, cocina y aseo; y 2 bungalows independientes con 2 habitaciones cada uno, salón, cuarto de baño en suite y terraza propia. Además, hay varios espacios de almacén y despacho, así como una gran despensa en la cocina.

Un patio exterior anexo a la cocina permite disfrutar de una deliciosa barbacoa al aire libre, o de ricos platos cocinados en horno de leña.


La zona de piscina ofrece mucho espacio para tomar el sol y refrescarse.


Todas las instalaciones son sostenibles, buscando la eficiencia energética y el respeto por la naturaleza: paneles fotovoltáicos, baterías PylonTech de litio, instalación fitosanitaria para la depuración de las aguas residuales, caldera de pellets para calefacción y agua caliente, chimenea de leña conectada al suelo radiante, bomba solar para la depuración del agua de la piscina. 


La finca acoge innumerables rincones mágicos llenos de cantos de granito enormes, muros de piedra, robles, olivos y antiguas construcciones típicas de la comarca. Al final de ella hay también una antigua casa que se puede rehabilitar para incorporarla al proyecto y tener una vivienda independiente.

El lugar idóneo para disfrutar del cielo estrellado, y para los amantes de las aves.


NO COBRAMOS HONORARIOS AL COMPRADOR

Características
Precio Venta 775.000 €
Precio/m² 1.107
Año de construcción 2015
Construidos 700 m2
Útiles 691 m2
Parcela 11.859,50 m2
Dormitorios 7
Baños 9
Calefacción Suelo radiante
Trastero
Estado Buen estado
Tipo de suelo Baldosa
Piscina privada
Calificación Energética En trámite
Luz
Agua
Alarma interior
Alarma perimetral
Escalas de eficiencia



Tu agente
Paula de Castro Pardeiro
Contáctanos

Si deseas más información sobre esta propiedad, por favor, rellena el formulario.

 Sí, he leído y/o acepto las Condiciones de uso y la Política de privacidad

CONTÁCTANOS

Calle José Ortega y Gasset 59
28006 Madrid